Home
Projects
Architecture
Design
Research and Education
Fabrication
News
About
Contact
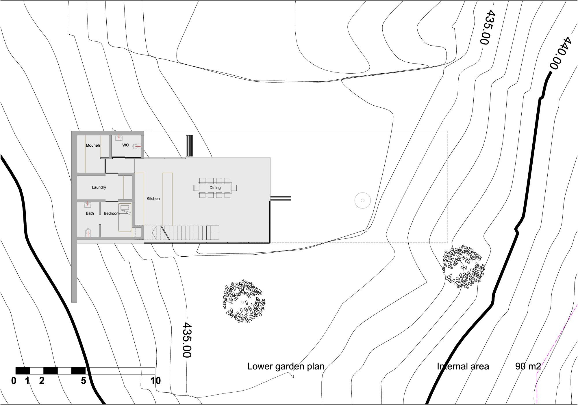
Bridge House
While most people tend to buy plots on top of hills, this client acquired a valley, offering us the opportunity to nest in its depths, linking its two very different sides by an inhabited bridge that creates and shades the living spaces on either side of the river.
The inhabited bridge is an archaic typology dating back to a time where bridge engineers and architects were one and the same. Only a few examples remain today.
A project in a valley gave us occasion to revisit this typology.
The central hollow of the valley, where a narrow river flows, is the most desirable place to live. By bridging this hollow, with a structure housing the bedrooms, we were able to shade and define the valley, to create the main living space. We were also able to bridge the difference between the two sides of the valley, one of which is shaded and humid, the other, sunny and dry, which we further emphasized by the vegetation we planted. Conceived as a bridge, the house permits us to use the best part of the site without destroying it.
Search :
Projects
/
Architecture
/
More In
Architecture
..
..Next
Architecture
The project is primely located in Jeddah overlooking the Red Sea and Jeddah’s Grand Prix Formula 1 Circuit.
Designed by Bits to Atoms and 3D Printed by Post Industrial Crafts, The labyrinth of Chateaugiron is the first very large space frame ever 3D printed
A remote villa within a sloped land with trees to preserved, is designed in three separate blocks
House Salima, a small house within a big house.
For the EXPO 2023 teaser at the Doha World Cup, Bits to Atoms and Post Industrial Crafts proposed a large version of the EXPO's flowery logo
The Forest Boutique Hotel. A unique experience in a protected setting, Right in the beating heart of the City.
Yowalah, Urban Commissions 2021
The Art & work center, as an associations’ house.
Baskinta Lebanese Mountain House reconstruction
House in a field, Berbara Lebanon
Jeddah National Theater, Saudi Arabia
Platonic Volumes and Cosmologies, Brisbane - Australia
Company Headquarters, Kinshasa, DRC
House in Jbeil, Restoration and Extension
Al-Ula Winter Garden Tourist Information & Ticketing Pole
UBIC flexible architecture system
Accor Hotels : Novotel & Adagio Hotels in Abidjan, Ivory Coast
Al Soudah, Planning & Touristic Development
Wall House in baskinta, Lebanon
Abwab Pavilion - Dubai Design Week (DXBDW)
Babylon Business Hub
Madina City Museum
Two Islands, biotop and architecture design
The Basket a Handicraft & Design Hub for Jeddah
3 Houses in Faraya, Lebanon
Beirut Culture and Arts House, Lebanon
Beit Ghouyoum / Maison des Nuages
Crystals Hotel and Serviced Apartments, Jeddah, KSA
E5 Vertical Villas, Yarze, Lebanon
Green Park Offices, Riyadh, KSA
Villa in MechMech, Lebanon
Mosque competition in Mekkah
Naas Hotel & spa, Bekfaya, Lebanon
Parking Skin & Interstitial Garden, Jeddah, KSA
PMDC Headquarters
Sail, Jeddah, KSA
Seaside Domain & Villa
Seeds Tower, Dubai UAE
Seeds Mountain Dwellings
TUMO Studios
Inhabited Garden
Martyrs Square Competition, Beirut, Lebanon
Novotel & Ibis Hotels, Jeddah, Saudi Arabia
Parachute Pavilion Competition, Coney Island, USA
Loading
Home
Projects
Architecture
Design
Research and Education
Fabrication
News
About
Contact
© 2026
Nascode
-
BitsToAtoms
-All rights reserved
Stay up to date
Subscribe to our newsletter for our latest news lorem Ipsum is simply for our latest news lorem Ipsum is simply.