Home
Projects
Architecture
Design
Research and Education
Fabrication
News
About
Contact
House in Jbeil, Restoration and Extension
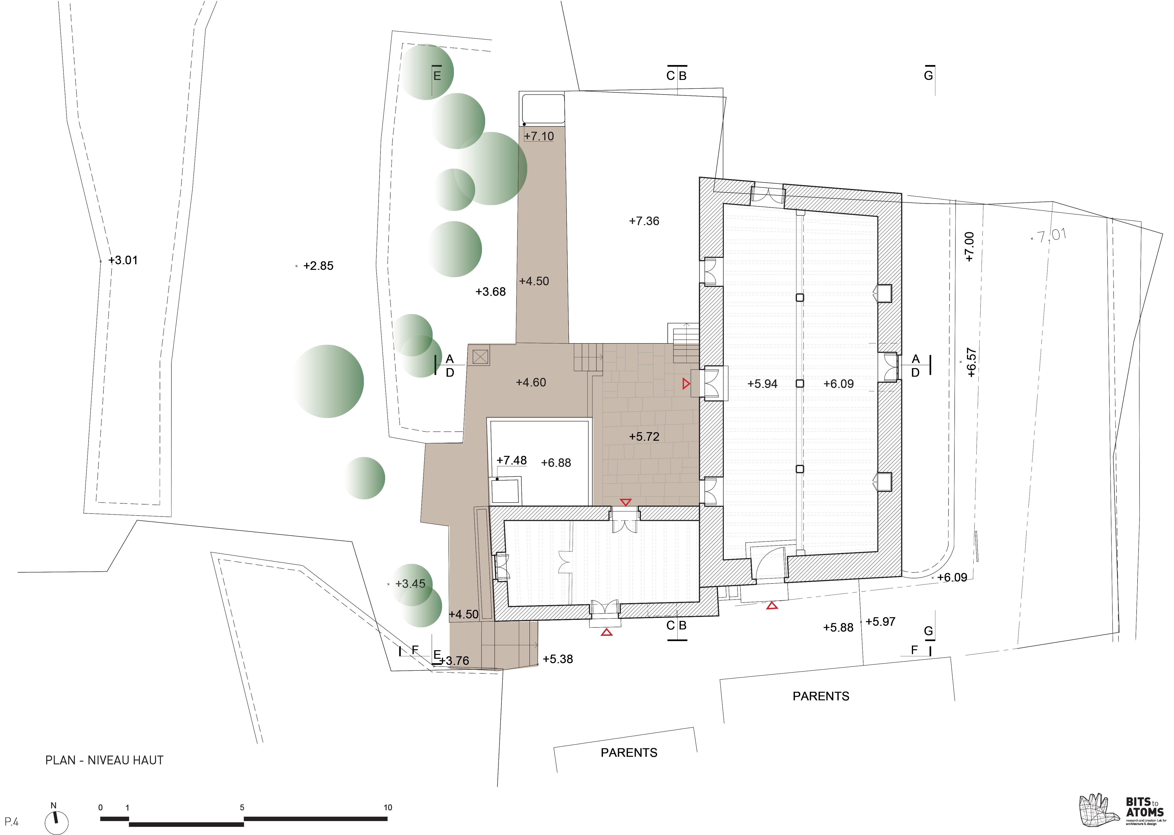
The House in Jbeil is an adaptive reuse of a sericulture lodgement, a testament to silk production in Lebanon and the rise of a new class of bourgeoisie. These testimonies of the past are not to be turned into cold museums but should continue to be lively places - and the great challenge here is to combine contemporary living with the preservation of heritage.
Located within the first slopes surrounding Byblos, the living spaces are organized around a courtyard with every room attached to and revolving around it. As the starting point of the project, the courtyard controls every room - it assembles everyone.
The contemporary volume is carefully nested with the historical building. With a separation in treatment, the addition reads clearly as a clean-cut volume branching to the existing one: traditional techniques for the historical structure are matched with a contemporary steel and wood extension. The house is richer from its double identity, the serene combination of two eras, both at their full expression.
Search :
Projects
/
Architecture
/
Exterior perspective from landscaped garden
Exterior view from courtyard
Interior view of existing structure
Plan of existing structure prior to intervention
Aerial Image showing the House in Jbeil with its immediate surrounding
Elevation
Scale Model
Interior perspective of main living space
More In
Architecture
..
..Next
Architecture
The project is primely located in Jeddah overlooking the Red Sea and Jeddah’s Grand Prix Formula 1 Circuit.
Designed by Bits to Atoms and 3D Printed by Post Industrial Crafts, The labyrinth of Chateaugiron is the first very large space frame ever 3D printed
A remote villa within a sloped land with trees to preserved, is designed in three separate blocks
House Salima, a small house within a big house.
For the EXPO 2023 teaser at the Doha World Cup, Bits to Atoms and Post Industrial Crafts proposed a large version of the EXPO's flowery logo
The Forest Boutique Hotel. A unique experience in a protected setting, Right in the beating heart of the City.
Yowalah, Urban Commissions 2021
The Art & work center, as an associations’ house.
Baskinta Lebanese Mountain House reconstruction
House in a field, Berbara Lebanon
Jeddah National Theater, Saudi Arabia
Platonic Volumes and Cosmologies, Brisbane - Australia
Company Headquarters, Kinshasa, DRC
Al-Ula Winter Garden Tourist Information & Ticketing Pole
UBIC flexible architecture system
Accor Hotels : Novotel & Adagio Hotels in Abidjan, Ivory Coast
Al Soudah, Planning & Touristic Development
Wall House in baskinta, Lebanon
Abwab Pavilion - Dubai Design Week (DXBDW)
Babylon Business Hub
Madina City Museum
Two Islands, biotop and architecture design
The Basket a Handicraft & Design Hub for Jeddah
3 Houses in Faraya, Lebanon
Beirut Culture and Arts House, Lebanon
Beit Ghouyoum / Maison des Nuages
Bridge House, Lebanon
Crystals Hotel and Serviced Apartments, Jeddah, KSA
E5 Vertical Villas, Yarze, Lebanon
Green Park Offices, Riyadh, KSA
Villa in MechMech, Lebanon
Mosque competition in Mekkah
Naas Hotel & spa, Bekfaya, Lebanon
Parking Skin & Interstitial Garden, Jeddah, KSA
PMDC Headquarters
Sail, Jeddah, KSA
Seaside Domain & Villa
Seeds Tower, Dubai UAE
Seeds Mountain Dwellings
TUMO Studios
Inhabited Garden
Martyrs Square Competition, Beirut, Lebanon
Novotel & Ibis Hotels, Jeddah, Saudi Arabia
Parachute Pavilion Competition, Coney Island, USA
Loading
Home
Projects
Architecture
Design
Research and Education
Fabrication
News
About
Contact
© 2026
Nascode
-
BitsToAtoms
-All rights reserved
Stay up to date
Subscribe to our newsletter for our latest news lorem Ipsum is simply for our latest news lorem Ipsum is simply.